Bývajte už o 2 mesiace
Novostavba bytového domu
Bernolákova, Ružomberok
Vitajte na stránke projektu novostavba bytového domu Bernolákova, Ružomberok.
Ponúkame Vám jedinečnú príležitosť na kúpu bytu priamo v centre mesta Ružomberok v projekte Bernolákova.
Exkluzívna poloha bytového domu Bernolákova s dostupnosťou centra mesta, stanice MHD, lekáreň, potraviny a ostatných služieb, školy, škôlky a kompletnou občianskou vybavenosťou, vlastným parkovaním priamo v centre mesta.
Predurčuje investíciu do bytu Bernolákova ako jednu z mála v celom Ružomberku.
Kvalita-Lokalita-parkovanie
Nehľadajte ďalej, tento byt má všetko
Investícia, na ktorej ušetríte – neplatíte za parkovacie miesto, vlastné kúrenie a ohrev teplej vody tepelným čerpadlom. Kvalitné tiché bývanie s vlastným dvorom, nabíjacou stanicou na elektro autá, parkovacími miestami, krásnymi výhľadmi na evanjelický kostol, rínok , kamerový systém a zabezpečenie bytov.
- veľká 9m2 terasa a 4m2 balkón
- príprava pre klimatizačnú jednotku - chladenie a kúrenie
- nízkoenergetický štandard bytového domu
- regulácia - ovládanie kúrenia pre každú bytovú jednotku
- vstup do bytu - bezpečnostné protipožiarne dvere
- parkovanie vo dvore (možnosť odkúpenia)
- el. vrátnik s kamerou a centrálnym ovládaním pre každý byt
- nízkoenergetické vykurovanie vlastným tepelným čerpadlom
- exteriérové žalúzie
- interiérové dvere podľa výberu
- podlaha podľa výberu - plávajúca podlaha, vinyl, polyuretán
Nízkoenergetický štandard
Kúrenie a ohrev teplej vody vlastným tepelným čerpadlom. Nízkoenergetická trieda stavby A0 – pasívny dom. Zateplenie hr. 20 cm, okná 3 sklo. Kvalitné prevedenie, železobetónová konštrukcia a tehla. Podlahové kúrenie.
Občianska vybavenosť
Výborná občianska vybavenosť v tesnej blízkosti: materská škola 100m, základná škola 30m, nemocnica 200m, lekáreň, pošta, banka, obchody, reštaurácie a kaviarne.
Zabezpečenie
Bývanie v malej komunite s vlastným dvorom, parkovaním. Objekt zabezpečený kamerovým systémom, elektrický vrátnik s bezpečnostnými dverami.
Vlastný dvor
Uzatvorený vlastný dvor, zeleň, ideálny na trávenie voľného času, bezpečný priestor aj pre deti. Malá komunita. Komfortné bývanie najmä pre rodiny s deťmi.
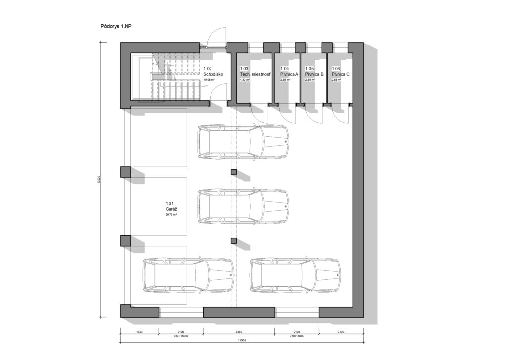
Parkovanie
Parkovanie vo dvore. Možnosť odkúpenia parkovacieho stojiska pre auto. Pre každé parkovacie miesto možnosť prípojky pre nabíjanie elektroauta s vlastným meraním elektriky. Zabezpečenie kamerovým systémom.
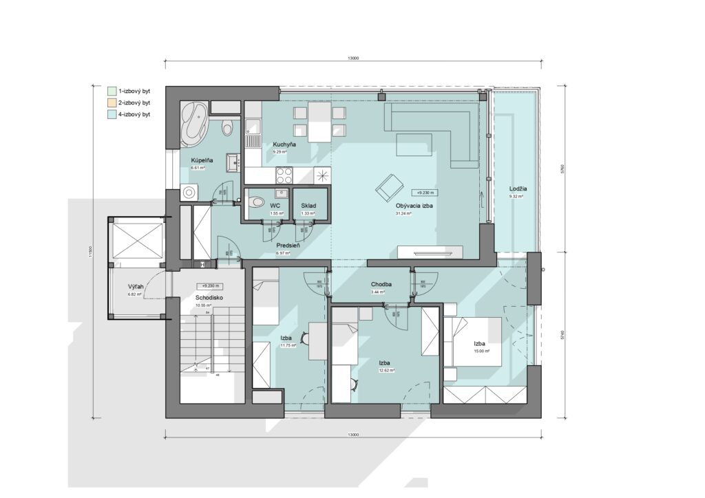
Štandard bytu
Sádrové omietky, strop pohľadový betón, dvere s dverovými obložkami, plávajúca podlaha alebo vinyl, okná s trojsklom, exteriérové žalúzie, podlahové kúrenie, kúpeľňa s obkladmi a sanitou, každý byt má klimatizačnú jednotku.
Výborná lokalita
Tiché prostredie priamo v centre mesta na ulici Antona Bernoláka. Vynikajúca dostupnosť:
- železničná stanica 300m
- autobusová stanica 300m
- zastávka MHD 50m
Kontakt
Napíšte nám cez kontaktný formulár alebo nás kontaktujte priamo na nižšie uvedenom telefónnom čísle alebo emailovej adrese.
© Tvorba web stránok a rýchly hosting by Mojawebstranka.sk